See all 9 photos
$949,900
Est. payment /mo
7,702 Sqft Lot
Active
628 N Pasadena Avenue Azusa, CA 91702
REQUEST A TOUR If you would like to see this home without being there in person, select the "Virtual Tour" option and your agent will contact you to discuss available opportunities.
In-PersonVirtual Tour

UPDATED:
Key Details
Property Type Vacant Land
Sub Type Unimproved Land
Listing Status Active
Purchase Type For Sale
MLS Listing ID CRAR25184461
HOA Y/N No
Lot Size 7,702 Sqft
Acres 0.18
Property Sub-Type Unimproved Land
Property Description
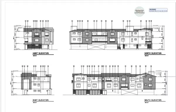
Approved for 6 Units in prime Location in Azusa! This is an exceptional opportunity to create in a high-demand area. Excellent location: Just moments from major shopping centers and a short distance from Azusa's vibrant downtown street. Proximity to Education: Located near Azusa Pacific University and Citrus College, ensuring a steady demand for housing. Individual parking garages: Providing convenience and security for each unit. Roof patios: Ideal for outdoor living and taking in scenic views. Seize the opportunity quickly and reap rich rewards.
Location
State CA
County Los Angeles
Zoning AZC2
Interior
Fireplace No
Exterior
View Y/N true
View Mountain(s)
Building
New Construction No
Others
Tax ID 8612003014

© 2025 BEAR, CCAR, bridgeMLS. This information is deemed reliable but not verified or guaranteed. This information is being provided by the Bay East MLS or Contra Costa MLS or bridgeMLS. The listings presented here may or may not be listed by the Broker/Agent operating this website.
Listed by Ming Ju Zhang • Pinnacle Real Estate Group
GET MORE INFORMATION
